Genting Industrial City

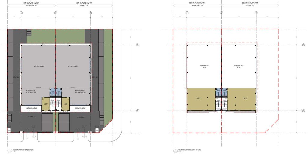
Semi-Detached Factory

Property Overview

Semi-Detached Factory

Land Size

70′ x 150′

Built up area

6,070 Sq. Ft.

Floor Plan

Loan Calculator

Genting Industrial City

Semi-Detached Factory

Loan Calculator
RM
.00
RM
.00
RM
.00
Years
%
RM
per month
*Figures displayed are estimations only*

Register Interest

Register ~ Semi-Detached Factory

Other Property Types