Last Phase of Indahpura Central

2 Storey Shop Office

Property Overview

2 Storey Shop Office

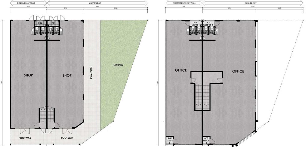
Land Size

22′ x 75′

Built up area

3,297 Sq. Ft.

Status

Open for Sales now

Floor Plan

Loan Calculator

Last Phase Of Indahpura Central

2 Storey Shop Office

Loan Calculator
RM
.00
RM
.00
RM
.00
Years
%
RM
per month
*Figures displayed are estimations only*

Register Interest

Register ~ 2 Storey Shop Office