Genting Industrial City

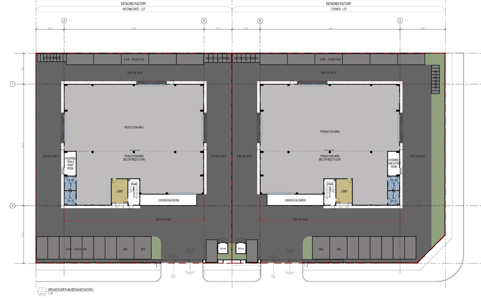
Detached Factory

Property Overview

Detached Factory

Land Size

140′ x 150′

Built up area

12,057 Sq. Ft.

Floor Plan

Loan Calculator

Genting Industrial City

Detached Factory

Loan Calculator
RM
.00
RM
.00
RM
.00
Years
%
RM
per month
*Figures displayed are estimations only*

Register Interest

Register ~ Detached Factory

Other Property Types